Description
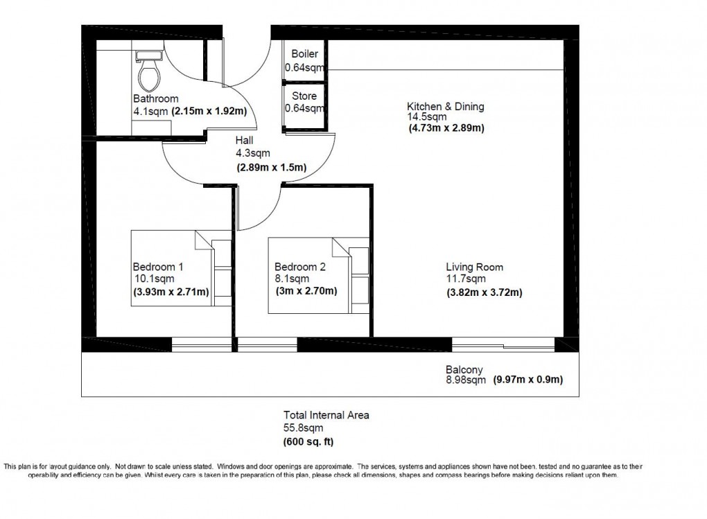
- PENTHOUSE APARTMENT (3RD FLOOR)
- 2 DOUBLE BEDROOMS
- 1 BATHROOM
- OPEN PLAN KITCHEN & LOUNGE
- HALLWAY
- PRIVATE BALCONY
- OPERATING LIFT
- ENTRY PHONE SYSTEM
- OFF-STREET PARKING ON A FIRST COME, FIRST SERVE BASIS
- HURST PARK LOCATION
Rawlinson and Webber are pleased to offer this STUNNING 2-DOUBLE BEDROOM penthouse apartment with balcony. This spacious apartment has a large open plan kitchen and lounge that benefits from double doors opening onto a private balcony, providing ample light into the property and panoramic views of the local area. Occupying two double bedrooms, one of which benefits from built-in wardrobes, good-sized bathroom with bath and shower and a hallway with ample storage complete the apartment. There is also secure off-street parking on first come, first served basis. We highly recommend your early viewing.
Location
Situated in a much sought-after location on the Hurst Park development in West Molesey. Close to the River Thames and within easy access of East & West Molesey Villages, excellent schools, supermarkets and local amenities. Hampton Court Station (TFL ZONE 6, connecting with London Waterloo) is the local train station and there is a bus service connecting with Kingston and Walton on Thames. Bridge Road with its bustling cafés, restaurants, boutiques and antique shops is a short distance away.
Floorplan
EPC
To discuss this property call:
Market your property
with Rawlinson & Webber
Book a market appraisal for your property today. Our virtual options are still available if you prefer.
